Preiser Mann Fussballer

Wochenbericht Nr. 177

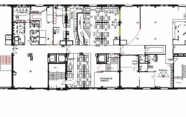
Inzwischen sind die Pläne fast fertig und wir haben mit Arbeiten im 3. Stock begonnen. Werfen wir also mal einen kurzen Blick auf den Plan zu werfen. Außerdem gibt es Impressionen aus dem 3. Stock... viel Spaß beim zuordnen ;-)

Montag, 15.03. - Sonntag, 21.03.2004

Der Grundrissplan des 3. Stocks. Im Zweiten Feld gibt es eine erheblich vergrößerte Toilettenanlage, im dritten Feld ist das Bistro / Restaurant untergebracht. Im vierten Feld sind Büros, Shop und Eingangsbereich. Abgeschlossen wird das ganze rechts mit dem "gefürchtet" Wartebereich. Wohl dem, der unseren Empfehlungen in den Besucherinfos folgt ;-)

Wo ist das? (Ja, im 3. Stock, das ist klar, aber wo genau?)

Wo ist das? (Ja, im 3. Stock, das ist klar, aber wo genau?)

Wo ist das? (Ja, im 3. Stock, das ist klar, aber wo genau?)

Wo ist das? (Ja, im 3. Stock, das ist klar, aber wo genau?)

Wo ist das? (Ja, im 3. Stock, das ist klar, aber wo genau?)

Wo ist das? (Ja, im 3. Stock, das ist klar, aber wo genau?)

Wo ist das? (Ja, im 3. Stock, das ist klar, aber wo genau?)

Wo ist das? (Ja, im 3. Stock, das ist klar, aber wo genau?)

Wo ist das? (Ja, im 3. Stock, das ist klar, aber wo genau?)

In Hamburg haben wir so etwas als Festinstallation in der Stresemannstr., in Knuffingen hat die Polizei ihre Geschwindigkeitsanzeige mobil auf einem Anhänger. Die etwas freundlichere Art, jemanden auf überhöhte Geschwindigkeit aufmerksam zu machen....